





















Happy Me
Capacity
11 Guests
Crew
7
Built / Renovated
Built 2020
Length
40.2 m
Beam
8.1 m
Draft
2.3 m
Cruise/Max Speed
11 knots
from:
190.000 €
/week

Capacity
11 Guests
Crew
7
Built / Renovated
Built 2020
Length
40.2 m
Beam
8.1 m
Draft
2.3 m
Cruise/Max Speed
11 knots
Highlights
- Foredeck jacuzzi with panoramic views for ultimate relaxation
- Sky lounge with disco lights, karaoke system, and stylish bar
- Wide selection of water toys, including Jet Skis, Seabobs, e-foils, SUPs, and kayaks
- Fully equipped gym and private spa room for wellness at sea
- Indoor and al fresco dining areas for elegant culinary moments
What’s included in the price?
INCLUDED
NOT INCLUDED
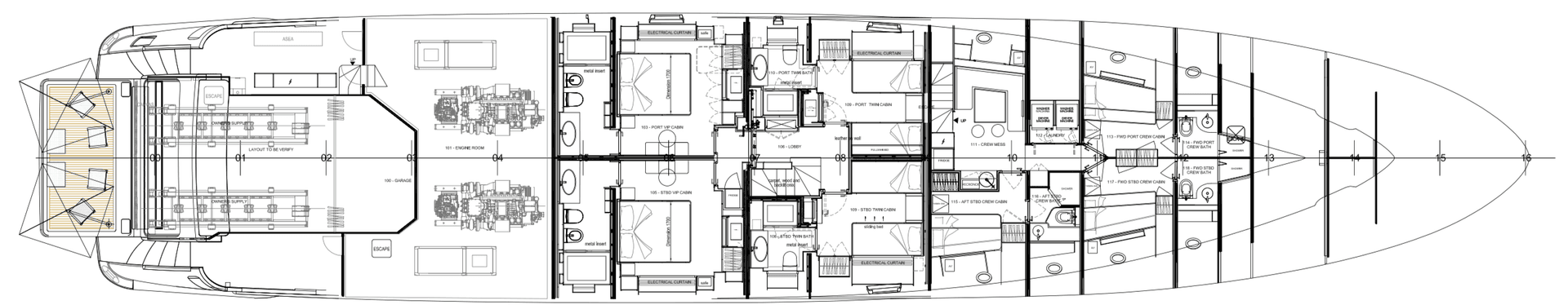
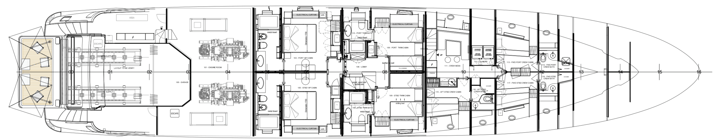
Layout


Frequently Asked Questions
Curated Fleet
Exclusive access to a refined fleet, paired with expert advice, means the right yacht appears faster and the planning stays elegantly simple
Trusted Reliability
Built on established relationships and destination expertise, strengthened by years of international charter experience
Tailored Escape
Luxury should feel frictionless: one conversation sets the vision, and our professionals translate it into a tailored itinerary with zero noise
Private Concierge
A dedicated charter broker oversees your journey from start to finish, designing a tailored week afloat while operations stay effortlessly arranged
Total Ease
Client-first service, and meticulous standards deliver a charter that feels personal, polished, and completely taken care of








































































